Venus Rock

Ridge Residences

€1,800,000 +VAT

arrow
arrow
4 Bedrooms
Villa
Covered area | 449.74m2 - 496.01m2

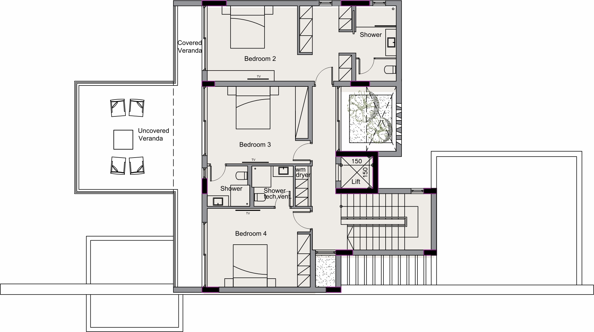
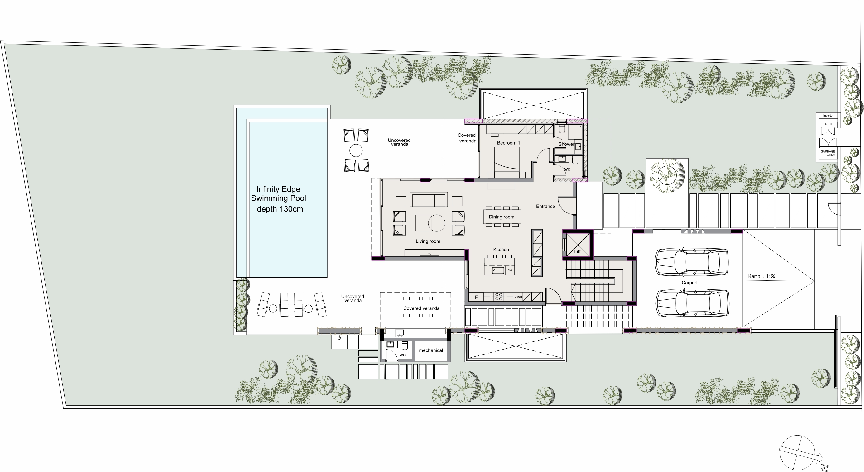
RIDGE RESIDENCES consist of two villas with an exceptional 4 bedroom + store, designed in an exceptionally large plots, located in the famous Venus Rock Golf Resort.

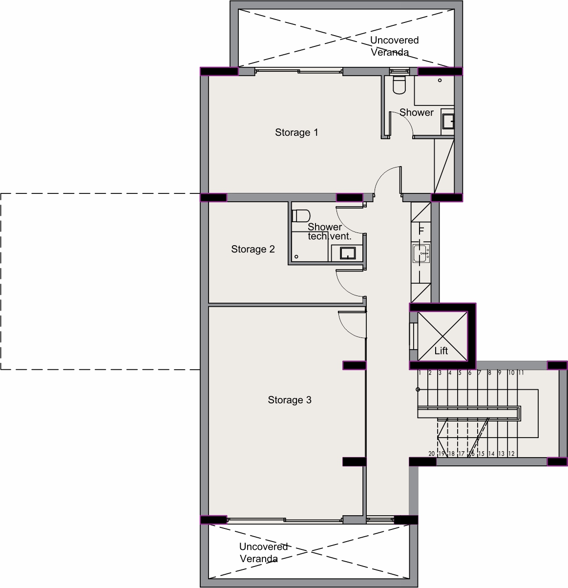
The villas are designed on three levels (basement, ground floor and first floor) and enjoy their own private swimming pool and spacious indoor and outdoor areas.

Attention to detail has been given and excellent quality finishes and specifications have been selected. Ridge Residences enjoys amazing views of the Mediterranean, the Secret Valley Golf Course and the beautiful surrounding landscapes.

Download PDF

Development Details

Type

Villa

Area

Venus Rock

Location

Countryside/Seaside/Golf

Bedroom

4

Price from

€1,800,000 +VAT

Plot size

1225 m2 - 1374 m2

Energy Performance Category

Energy Efficiency: (A)

Total covered area

449.74m2 - 496.01m2

Further details

Map

3

Minutes To sea

5

Minutes To golf

5

Minutes To healthcare

10

Minutes To airport

15

Minutes To shopping

3

Seconds To education

Plans

Document
PLOT 43 - GROUND FLOOR
Document
PLOT 42 - GROUND FLOOR
Document
PLOT 43 - FIRST FLOOR
Document
PLOT 42 - BASEMENT FLOOR
Document
PLOT 43 - BASEMENT FLOOR
Document
PLOT 42 - FIRST FLOOR

Available Units

Unit No.

V01

Property Type

Villas

Price

€1,980,000 +VAT

Status

Available

Beds

4

Plot size

1374.00 m2

Covered Areas

496.01 m2

+

Unit No.

V02

Property Type

Villas

Price

€1,800,000 +VAT

Status

Available

Beds

4

Plot size

1225.00 m2

Covered Areas

449.74 m2

+

Similar Properties

ENQUIRE ABOUT
THIS PROPERTY

Property Search