3 Bedrooms
Villa
Covered area | 198.80 m2



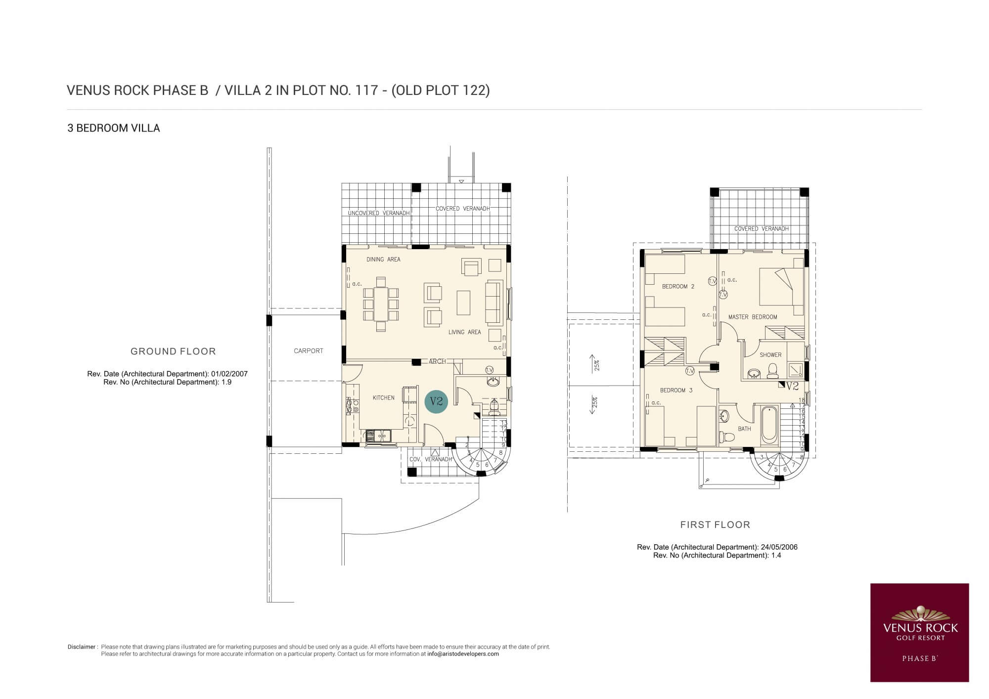
Villa in Plot 117 (Old 122)  in Venus Rock Phase B is a stunning and spacious key ready 3 bedroom villa in a very large plot in the famous Venus Rock Golf Resort. It’s inspired by Mediterranean architecture and with its own private swimming pool and beautiful landscaped gardens while overlooking the Mediterranean Sea. The Villa is close to a proximity of amenities including the Paphos International Airport, two famous golf resorts, the Venus Rock Golf Resort and Aphrodite Hills.  

Download PDF

Property Details

Unit No.

V2 (N117/O122)

Type

Villa

Area

Venus Rock

Location

seaside/countryside/golf

Bedrooms

3

Price

-

Status

Sold

Phase

0.00

Construction Stage

Key Ready

Plot size

757.00 m2

Swimming Pool

Yes

Total covered area

198.80 m2

Further details

Map

360

5

Minutes To GOLF

10

Minutes To HEALTHCARE

5

Minutes To EDUCATION

10

Minutes To AIRPORT

15

Minutes To SHOPPING

3

Minutes To SEA

Plans

Document
FLOOR PLANS
Document
SITE PLAN

Available Units

Unit No.

V1 (N188/O1)

Property Type

Villas

Price

-

Status

Sold

Beds

3

Plot size

1271.00 m2

Covered Areas

195.10 m2

+

Unit No.

V2 (N117/O122)

Property Type

Villas

Price

-

Status

Sold

Beds

3

Plot size

757.00 m2

Covered Areas

198.80 m2

+

Similar Properties

ENQUIRE ABOUT
THIS PROPERTY

Property Search