1-3 Bedrooms
Apartment
Covered area | 72.45m2 - 169.59m2

Andriana Court is a contemporary residential development ideally located in the heart of Paphos. Designed with modern living in mind, the building offers a harmonious blend of comfort, style, and convenience.

The development comprises 16 thoughtfully designed apartments across three floors, including 4 one-bedroom apartments, 4 two-bedroom apartments, and 8 three-bedroom apartments. Each apartment features its own covered veranda, perfect for relaxing and enjoying the surrounding views, while covered parking ensures convenience and protection for residents’ vehicles.

Situated just minutes away from three universities, as well as a wide range of shops, supermarkets, restaurants, and other amenities, Andriana Court offers an exceptional lifestyle choice for students, professionals, and families alike.

Download PDF

Development Details

Type

Apartment

Area

Paphos

Location

City Centre

Bedroom

1-3

Price from

€250,000 +VAT

Energy Performance Category

Energy Efficiency: (A)

Total covered area

72.45m2 - 169.59m2

Further details

Map

8

Minutes To sea

15

Minutes To airport

1

Minute To education

5

Minutes To healthcare

5

Minutes To shopping

10

Minutes To golf

Plans

Document
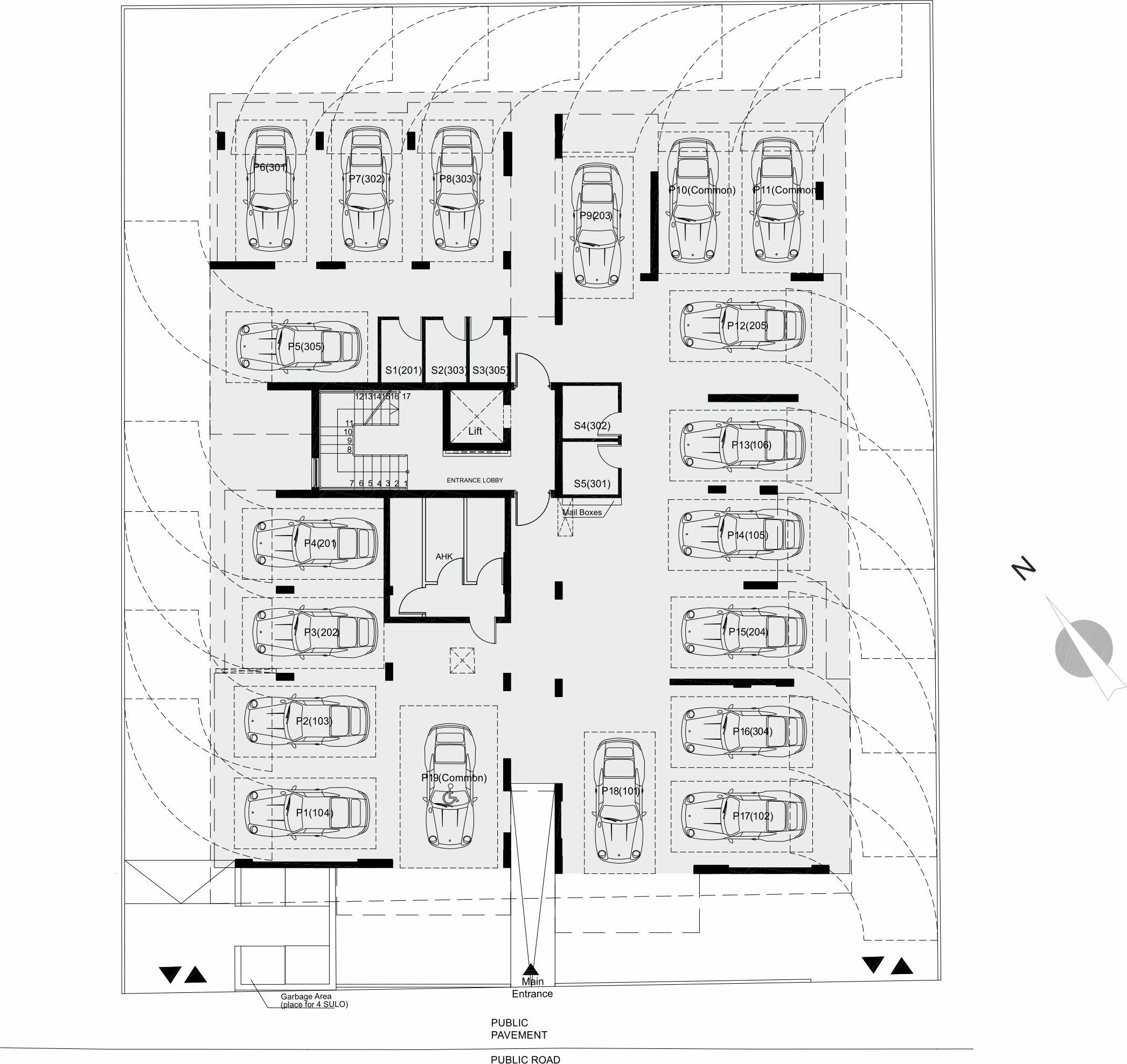
SITE AND GROUND FLOOR
Document
SECOND FLOOR
Document
FIRST FLOOR
Document
THIRD FLOOR

Available Units

Unit No.

A101

Property Type

Apartments

Price

€250,000 +VAT

Status

Available

Beds

2

Plot size

-

Covered Areas

96.17 m2

+

Unit No.

A102

Property Type

Apartments

Price

-

Status

Sold

Beds

1

Plot size

-

Covered Areas

80.73 m2

+

Unit No.

A103

Property Type

Apartments

Price

€325,000 +VAT

Status

Available

Beds

3

Plot size

-

Covered Areas

127.33 m2

+

Unit No.

A104

Property Type

Apartments

Price

€350,000 +VAT

Status

Available

Beds

3

Plot size

-

Covered Areas

145.76 m2

+

Unit No.

A201

Property Type

Apartments

Price

€395,000 +VAT

Status

Available

Beds

3

Plot size

-

Covered Areas

169.09 m2

+

Unit No.

A202

Property Type

Apartments

Price

€360,000 +VAT

Status

Available

Beds

3

Plot size

-

Covered Areas

127.33 m2

+

Unit No.

A203

Property Type

Apartments

Price

€360,000 +VAT

Status

Available

Beds

3

Plot size

-

Covered Areas

145.76 m2

+

Unit No.

A301

Property Type

Apartments

Price

-

Status

Sold

Beds

3

Plot size

-

Covered Areas

169.59 m2

+

Unit No.

A302

Property Type

Apartments

Price

€370,000 +VAT

Status

Available

Beds

3

Plot size

-

Covered Areas

131.73 m2

+

Unit No.

A303

Property Type

Apartments

Price

€370,000 +VAT

Status

Available

Beds

3

Plot size

-

Covered Areas

149.46 m2

+

Unit No.

A304

Property Type

Apartments

Price

-

Status

Sold

Beds

1

Plot size

-

Covered Areas

72.45 m2

+

Similar Properties

ENQUIRE ABOUT
THIS PROPERTY

Property Search